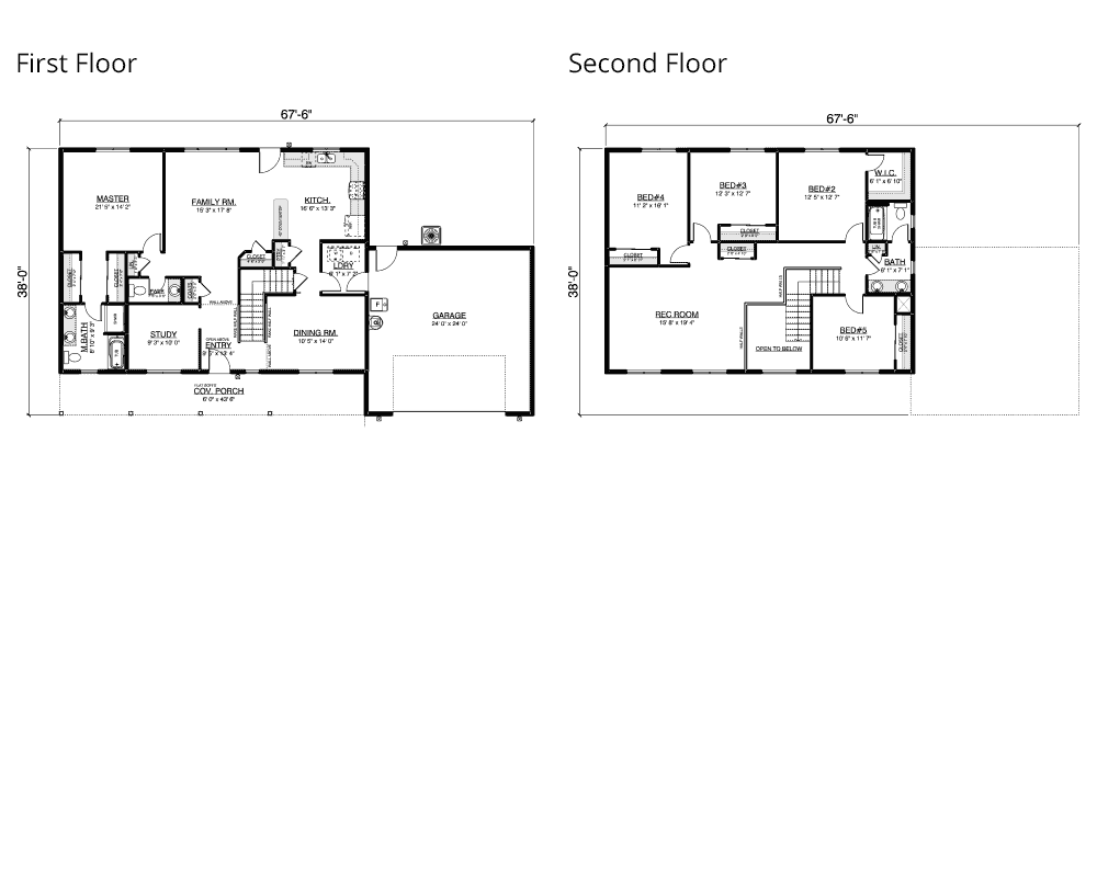
The Mission View home plan is a perfect choice for families. It’s classic ranch-style exterior features a beautiful extended front porch. With a homeowner’s touch of hanging flowering baskets and outdoor furniture, it will be sure to catch your eye. At 2699 square feet, this spacious two-story home includes 5 bedrooms and 2 ½ baths.
The main floor consists of a formal dining room and an open concept family room and a large kitchen with a pantry. The master suite is located on the main floor with dual walk-in closets. Homeowners will enjoy the luxurious master bath featuring a separate shower, large soak tub, and double sink. There’s also a convenient powder room and study near the front of the house and a laundry room with entry into the 2-car garage.
On the second floor, you’ll find four additional bedrooms, a full-size main bath and plenty of storage. The highlight of the upstairs is the large open rec room that’s sure to be a favorite spot for kids to have fun while keeping noise out of the downstairs. If you have a large family and want plenty of space, privacy, and character – check out the Mission View home plan.
Note: Pricing may vary based on build location. Land, site prep, utilities, and some homeowner items are not included in the price.
Learn more about what is and isn’t included in our price.
2699
5
2.5
2
67'-6" x 38'
As on-your-lot custom home builders with years of experience, True Built Home has been successfully helping families build their customized dream homes across western Washington and Oregon.
We currently build in western Washington and parts of western Oregon. Typically, we only build within 100 miles of our branch locations. Please view our Build Area Map to see if we cover your location. The main areas we build in are color-coded on the map. If your area is not fully covered in our build area, please contact us and we can review if building in your location would be possible for us.
Definitely! All of our home plans are customizable. Want to add extra square footage, a daylight basement, a 3rd car garage bay, 9 foot ceilings, or something else? We have an in-house design team that will work with you to make your home plan your dream home! Contact us to get started.
Yes, we can! Most of our home plans can usually be customized to add a daylight basement. Contact us and let us know which plan you have in mind, where you want to build, and any details about your land.
There are many factors to consider when building a home, such as weather, site accessibility, labor availability, and more. Since construction can be a complicated process with many moving parts, we schedule 270 days or more from the time the foundation is poured. That’s just an estimated timeline, and it could take more time or less, depending on the complexity of your project.
While we don’t offer in-house financing, we do work with a variety of lenders to make this easy for you. We have preferred lenders that we work with on a regular basis. These lenders specialize in traditional construction loans, while some specialize in FHA or VA loans. Please view our list of our preferred lenders who can help you get started with the loan process.


