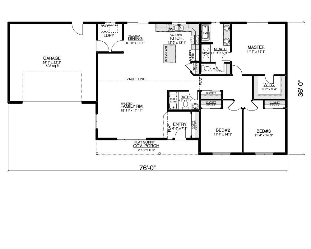
This beautiful ranch home has a traditional design with a two-car garage on one end and the living quarters on the other. Homeowners who enjoy sitting outside will appreciate the front porch that’s just waiting for a personal touch to add even more curb appeal. As you enter, the central vaulted living area’s design has the family room, dining room, and an open kitchen. The laundry room sits off the dining room and connects to the garage.
All of the bedrooms are on the same side of the home with the master in the back. The master bathroom has double sinks, tub, and shower with a private water closet. The kitchen offers lots of counter space and storage, including a stand-alone island.
The Ballenger combines a traditional look with a contemporary open floor plan offering families everything they need.
Note: Pricing may vary based on build location. Land, site prep, utilities, and some homeowner items are not included in the price.
Learn more about what is and isn’t included in our price.
1760
3
2
2
76' x 36'
As on-your-lot custom home builders with years of experience, True Built Home has been successfully helping families build their customized dream homes across western Washington and Oregon.
We currently build in western Washington and parts of western Oregon. Typically, we only build within 100 miles of our branch locations. Please view our Build Area Map to see if we cover your location. The main areas we build in are color-coded on the map. If your area is not fully covered in our build area, please contact us and we can review if building in your location would be possible for us.
Definitely! All of our home plans are customizable. Want to add extra square footage, a daylight basement, a 3rd car garage bay, 9 foot ceilings, or something else? We have an in-house design team that will work with you to make your home plan your dream home! Contact us to get started.
Yes, we can! Most of our home plans can usually be customized to add a daylight basement. Contact us and let us know which plan you have in mind, where you want to build, and any details about your land.
There are many factors to consider when building a home, such as weather, site accessibility, labor availability, and more. Since construction can be a complicated process with many moving parts, we schedule 270 days or more from the time the foundation is poured. That’s just an estimated timeline, and it could take more time or less, depending on the complexity of your project.
While we don’t offer in-house financing, we do work with a variety of lenders to make this easy for you. We have preferred lenders that we work with on a regular basis. These lenders specialize in traditional construction loans, while some specialize in FHA or VA loans. Please view our list of our preferred lenders who can help you get started with the loan process.


